WMEM|微量潤滑技術在準高速加工中的應用
WMEM|微量潤滑技術在準高速加工中的應用
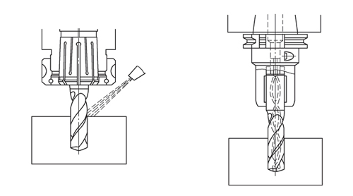
微量潤滑技術目前已經逐漸被熟知,并開始在機加工領域大量應用,這項技術在準高速加工中更能發揮作用。因為在低速的粗加工中,由于機床轉速低,加工余量大,發熱量大,微量潤滑的散熱功效不如切削液。而在超高速加工中,由于機床轉速會超過15000r/min,甚至更高;切削速度也會達到相當高的值,如:鋁合金已超過1600m/min,鑄鐵為1500m/min,超耐熱鎳合金達300m/min,鈦合金達150-1000m/min,纖維增強塑料為2000-9000m/min;各種切削工藝的切速范圍為:車削700-7000m/min,銑削300-6000m/min,鉆削200-1100m/min,磨削250m/s以上等。這時候的切削狀況完全不同于低速加工,如圖1所示。

這種超高速的加工對于刀具材料的要求較高,另外,在高速狀態下切削液的冷卻作用很小,負面作用很大,因此,基本是不能加切削液的,對微量潤滑的依賴也是很低的。基于以上原因,根據多年的經驗,微量潤滑更適合準高速加工,這個機床主軸轉速在5000-15000r/min之間。
一、準高速切削與微量潤滑結合的優勢
1. 微量潤滑的概念
微量潤滑(即MQL,Minimal QuantityLubrication)是一種金屬加工的潤滑方式,即半干式切削。切削時將壓縮氣體(空氣、N2、CO2等)與極微量的潤滑油混合汽化后,形成微米級的液滴,噴射到加工區,進行有效潤滑的一種切削加工方法。切削液的用量一般僅為3-50mL/h(傳統濕法切削的用量為20-100L/min),可有效減小刀具與工件、刀具與切屑之間的摩擦,防止粘結,延長刀具壽命,提高加工表面質量。MQL的應用優勢明顯,適用范圍廣闊,國內外關于MQL的研究包含了幾乎所有的切削工藝,如鉆削、銑削、車削和磨削等。
2. 微量潤滑的作用機理
MQL在速度較高時更能發揮作用,有利于提高切削速度,工件的切削破裂點會提前出現,因此產熱區亦會較快離開刀具。由于熱能全部集中在工件及切屑上,刀具唯一的熱源只有和切屑接觸——發生熱能傳導及磨擦的小部分。在微量潤滑劑的作用下,高切削速度亦會使切屑更為彎曲及以更快速度離開工件及刀具,能有效減少切屑傳導熱能的時間。殘留在工件上的高溫卻能軟化工件表面,讓刀具更容易進行切割,如圖2所示。

圖 2
刀具在較高速度加工時,由于切削液的液滴很大,很難真正進入加工區域。在旋轉刀具加工時,切削液在離心力的作用下已經遠離了加工區,只有在完成切削時(如銑削),切削液才與刀刃接觸,這就發生了淬火作用,產生冷熱沖擊,影響刀具壽命。而在微量潤滑加工下,微量潤滑劑的液滴都是微米級的,甚至是零點幾個微米,在壓縮空氣或者其他載體的作用下,很容易滲透到刀具與工件接觸的加工表面,起到很好的潤滑作用,刀具溫度恒定,有效延長刀具壽命。
3. 微量潤滑的分類
(1)按照油氣是否通過刀具內部冷卻通道可分為:內置式系統和外置式系統(見圖3)。

(a)外置式 (b)內置式
微粒直徑15-40μm 微粒直徑0.3-1μm
圖 3
(2)按照潤滑劑和其傳輸介質是否走同一個路線可分為單通道系統和雙通道系統。這兩個系統的油霧發生位置也不同,一個是在油霧發生器內部,一個是在刀柄或者噴嘴處,如圖4所示(上圖為單通道,下圖為雙通道)。

圖4 1、6-旋轉接頭 2、7-機床主軸 3、9-刀柄 4、10-刀具 5-油霧 8-噴嘴 11-油 12-壓縮空氣
4. 微量潤滑加工與傳統切削液加工、干式加工的比較
(1)冷卻液的準高速切削。提高生產速度會使刀具更高溫,由更大溫差所產生的更強淬火反應會降低刀具壽命。
(2)干切削的準高速切削。雖然跟MQL同樣避免了淬火,但因欠缺潤滑效果,刀具的磨損非常明顯,并與切削速度成正比。
(3)MQL的準高速切削。MQL系統有效潤滑工件和刀具表面(以減少磨損及磨擦所產生的熱能)及把帶高熱的切屑吹走(減少切屑導熱到刀具上),避免了淬火同時提高切削速度與刀具壽命。
MQL單通道系統的最高轉速是16000r/min,而雙通道系統可達到40000 r/min。事實上,當機床主軸轉速達到10000r/min時,無論是單通道系統還是雙通道系統,都會面臨離心力的問題,只是單通道的影響會更大。
由于單通道系統油霧要在主軸里通過,為了盡量減少離心力的影響,只能盡量減小其內部通道尺寸。但又不能太小,太小會增加輸送壓力,因此較為合適的直徑尺寸在3-7mm之間,這也取決于拉刀機構的尺寸。
而雙通道系統由于油在一個直徑0.5mm的通道里流動,并且在工作過程中油是充滿整個管路的,壓縮空氣在管外運行,因此,在機床主軸這個長度上基本不會受到離心力的影響。但到了刀柄的混合處壓縮空氣將油形成油霧的時候,離心力就會產生影響。據刀具廠商鈷領做過試驗,當刀具轉速到達16000r/min時,雙通道的刀柄里也充滿了油。
單通道系統與雙通道系統的比較見表1。
表1 單通道系統與雙通道系統的比較
| 比較項目 | 單通道系統 | 雙通道系統 |
| 工作原理 | 利用文丘里原理,油霧在發生器內產生,沿著管路通過主軸的旋轉接頭、主軸內部、刀柄到達到刀具與工件加工之間(內置式),也可以通過主軸外部管路油霧直接到達刀具與加工表面之間(外置式) | 油通過泵供給供油裝置,供油裝置把一定量的油通 過旋轉接頭、噴桿輸送到刀柄處的有特定結構的位 置,同時壓縮空氣在這個位置與油混合,油在壓縮空氣的作用下分散成細微顆粒,與壓縮空氣一起經過刀柄、刀具,到達加工表面(內置式) |
| 供油與主軸轉速的關系 | 與主軸轉速(離心力)有關 | 受主軸轉速(離心力)影響小 |
| 主軸最高轉速(r/min) | 16000 | 40000 |
| 適合最小刀具內冷孔直徑/mm | 1 | 0.4 |
| 潤滑油粘度(mm2/s) | 50 | 100 |
| 響應速度 | 慢 | 快<0.1 |
| 壓縮空氣壓力(kN) | 最低50 | 最低40 |
| 油量可控性 | 較差 | 較好 |
| 適用場合 | 單機,舊機床改造,新上設備均可 | 對節拍要求高的生產線,新上生產線 |
二、微量潤滑系統的要求
1.對刀具結構的要求
內冷通道開口位置要適當,越靠近切削刃越好,當然絲錐、鉆頭與銑刀也有所不同,如圖5所示。另外刀具柄部的選擇也要符合微量潤滑的要求,如圖6所示。

圖 5

圖 6
2. 對刀柄的要求
機床速度在準高速狀態時應盡量使用HSK刀柄,這樣的刀柄更適合微量潤滑系統油霧的傳送,尤其是刀柄里面的冷卻管能插入拉刀機構,形成一個密閉的通道,如圖7所示。

圖 7
3. 對主軸的要求
適合微量潤滑的主軸首先不能漏氣,內部不能有單向閥,不能有忽小忽大的變徑。
4. 對旋轉接頭的要求
目前市場上與不少品牌的旋轉接頭,但適合微量潤滑的旋轉接頭有特殊要求。適合微量潤滑的旋轉接頭要適合干運行,選擇時產品的供應廠家會有特別說明。
5. 對刀具材料的要求
由于微量潤滑加工中熱量有一定積累,因此需要選用一定耐熱性刀具,普通的工具鋼刀具及高速鋼刀具是不適合的,而金剛石刀具、立方氮化硼刀具、陶瓷刀具、涂層刀具等都可選用。但任何刀具在加工中都有一定的使用范圍,只能適應一定的材料和一定的切削速度,所謂的萬能刀具是不存在的。因此,合理選擇刀具材料,是完成微量潤滑加工與準高速加工完美結合的關鍵,如表2所示。

6. 對潤滑劑(油品)的要求
微量潤滑劑在微量潤滑加工中起著非常重要的作用,微量潤滑劑的最重要特征就是環保性能,因為微量潤滑劑在發生裝置的作用下形成了從零點幾微米到上百微米的顆粒,有時候會被人吸入,不能損害人的身體健康,適合加工性能的潤滑劑很多。但滿足環保性能的潤滑劑不是很多。因此,選擇微量潤滑劑不但要適合加工要求,還要適合環保要求,這一點非常重要。
三、微量潤滑在準高速加工中的應用案例
加工案例如表3、表4所示。


四、微量潤滑改造加工案例
(1)設備。鉆孔加工中心,設備號:099-224,對比設備號:099-238。
(2)工件材料。碳鋼(產品名稱:停車齒輪,產品型號:GF6-X24F)。
(3)刀具壽命。微量潤滑系統的刀具加工了97個工件,對照組刀具加工了52個工件,微量潤滑的刀具壽命是傳統切削液的1.87倍,壽命比原來提高了87%。
(4)能源消耗。根據我們現場統計,原切削液系統的電動機總功率為10kW,而微量潤滑系統的總功率為24W。很明顯,傳統切削液系統的能耗是微量潤滑系統的417倍。
(5)尺寸精度。本專機加工12個孔,尺寸精度(18±0.2)mm,位置度公差f6。對工件進行通止規的檢查和儀器檢查,沒有發現不合格的尺寸。但微量潤滑加工的孔的精度更好些,尺寸也比較穩定。
(6)表面精度。該件的加工表面精度要求Ra12.5μm,經檢查,用微量潤滑加工的工件表面精度好于切削液加工的近3倍。
(7)斷屑。從整個加工過程看,使用微量潤滑加工時刀具的斷屑要遠遠好于使用傳統切削液的斷屑,如圖8所示(左:用微量潤滑加工刀具幾乎沒有纏屑;右:用切削液加工刀具有很多屑纏繞刀具)。

圖 8
(8)零件加工后的對比如圖9所示(左:用微量潤滑加工的工件;右:用切削液加工的工件)。

圖 9
五、結束語
采用微量潤滑加工呈現以下特點:
(1)使用微量潤滑系統加工,加工環境明顯改善;(2)刀具壽命明顯提高;(3)省去每天添加處理切削液的工作;(4)沒有大量切削液的流失而產生的成本費用的增加;(5)從抽測的加工尺寸來看,加工尺寸比較穩定;(6)加工過程中工件纏屑問題明顯改善;(7)成本大大降低。
微量潤滑技術在準高速加工中越來越凸顯其重要作用,在使用中又得到了逐步拓展,比如與CO2結合,或者與液態氮結合形成超低溫的加工,這為加工鈦合金等發熱量大的難加工材料提供了新的思路。國際國內一些研發機構或企業都在這方面做了有益的嘗試。目前,廣州匯專科技集團股份有限公司已經在微量潤滑加工以及超低溫加工方面進行了深入的探索,希望能夠為準高速、高速的機械加工提供解決方案。
(樊利輝 匯專科技集團股份有限公司)
